Nackenheim:
Mehrgenerationenhaus- Alle unter einem Dach oder mit Freunden oder Familie gemeinsam das Traumhaus bauen inkl. Baugrundstück von Bien Zenker
Objekt-Nr.: 12023-9563

3729 BienZenker Celebration200 SD SD 03 13972 web



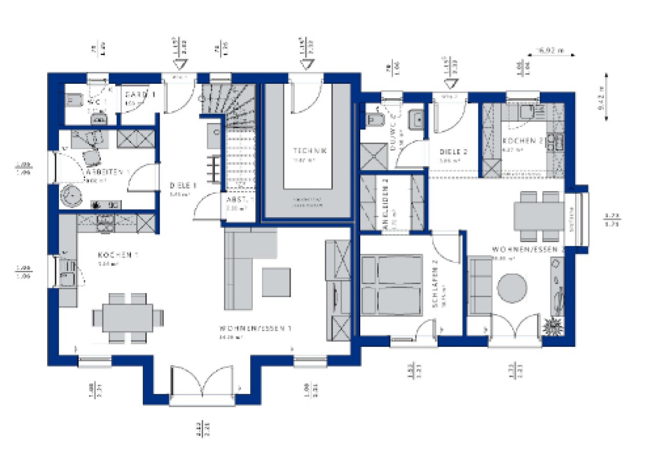
CEL 200 V3 KAT SD-SD EG 14794 web

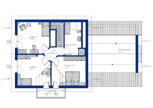
CEL 200 V3 KAT SD-SD DG 14792 web

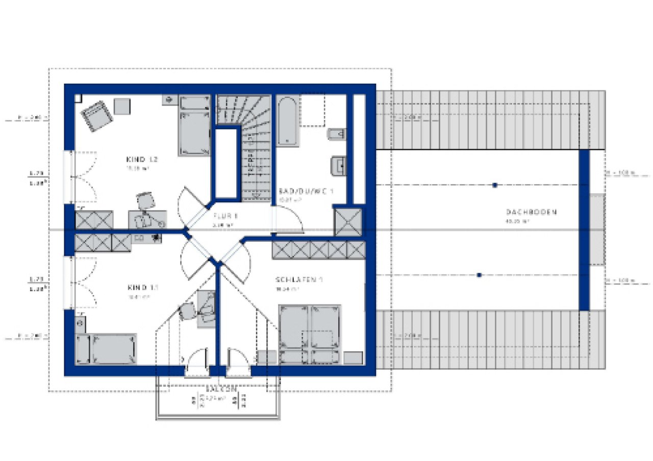
3729 BienZenker Celebration200 SD FD WEK 02 13976 web

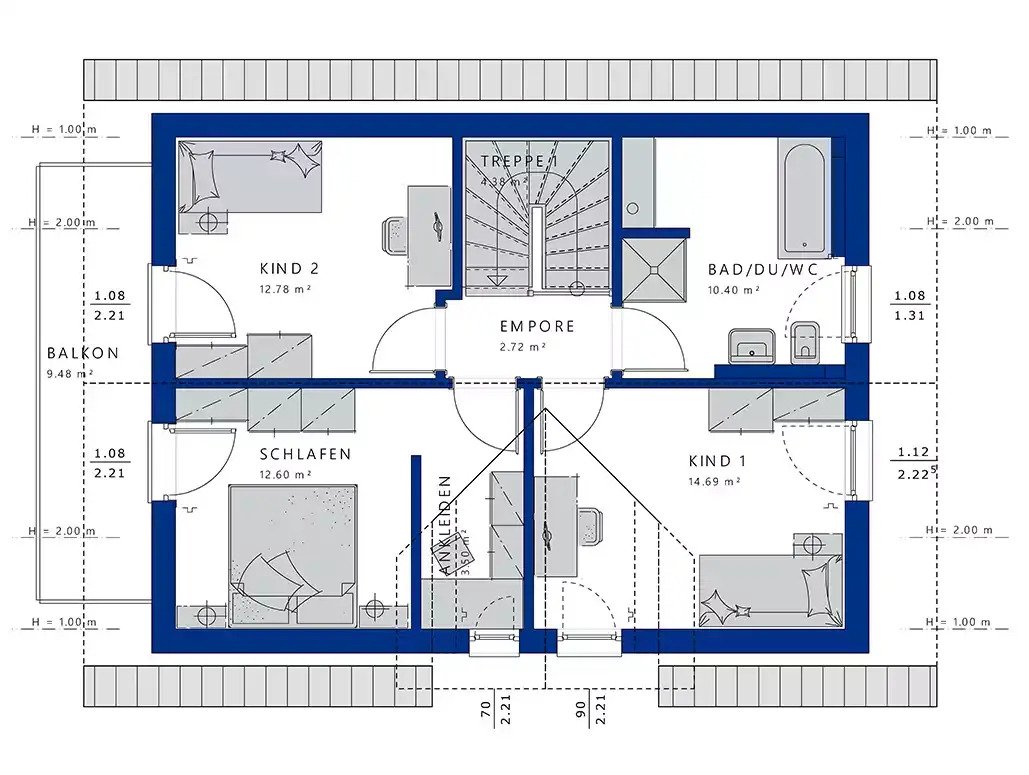
3729 BienZenker Celebration200 SD SD Kizi 02 13968 web

















Preis:
899.506 €
Wohnfläche ca.:
200 m²
Grundstück ca.:
255 m²
Zimmeranzahl:
8
Mehrere Generationen unter einem Dach vereint – diese traditionelle Wohnform gewinnt wieder zunehmend an Bedeutung. Wichtig dabei ist, dass jeder Bewohner, egal ob groß oder klein, ob alt oder jung, den gleichen Wohnkomfort genießt. Im Idealfall lässt sich das Mehrgenerationenhaus flexibel auf veränderte Lebensumstände anpassen. Die zweite Wohneinheit könnte beispielsweise als Studentenwohnung für den Nachwuchs genutzt oder vermietet werden.
Die von uns gemachten Informationen beruhen auf Angaben des Verkäufers bzw. der Verkäuferin. Für die Richtigkeit und Vollständigkeit der Angaben kann keine Gewähr bzw. Haftung übernommen werden. Ein Zwischenverkauf und Irrtümer sind vorbehalten.
Wir weisen auf unsere Allgemeinen Geschäftsbedingungen hin. Durch weitere Inanspruchnahme unserer Leistungen erklären Sie die Kenntnis und Ihr Einverständnis.
Das könnte Ihnen auch gefallen

Daniela König - Freie Handelsvertretung der Bien-Zenker GmbH
Frau Daniela König
Am Flürchen 3a
55624 Oberkirn
Telefon: +49 1520 6535507
55299 Nackenheim































































