Armsheim:
Nicht zu GROSS und nicht zu klein! Moderner Neubau auch für kleinere Bauplätze geeignet !Bauern Sie mit Bien Zenker Ihr Traumhaus inkl. Bauplatz
Objekt-Nr.: 12023-9543
















































Preis:
474.732 €
Wohnfläche ca.:
140 m²
Grundstück ca.:
201 m²
Zimmeranzahl:
5
Objektbeschreibung
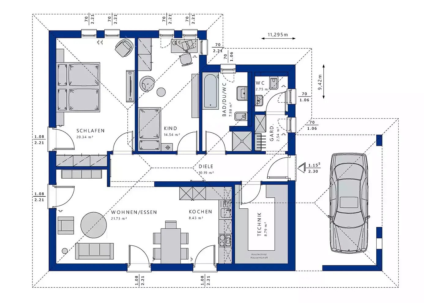
Grundrisse sagen mehr als viele Textbausteine !!
Werfen Sie einen Blick darauf und Sie werden sehen, was dieses Haus so exklusiv macht!
Das könnte Ihnen auch gefallen
Ihre Ansprechpartnerin

Daniela König - Freie Handelsvertretung der Bien-Zenker GmbH
Frau Daniela König
Am Flürchen 3a
55624 Oberkirn
Telefon: +49 1520 6535507
Objekt-Adresse
55288 Armsheim
Optionen









































