Bad Sobernheim:
Gemeinsam mit Bien Zenker Ihr Traumhaus inkl. Baugrundstück planen und bauen !
Objekt-Nr.: 12023-9994




AUSZEICHNUNG BZ


























Preis:
497.890 €
Wohnfläche ca.:
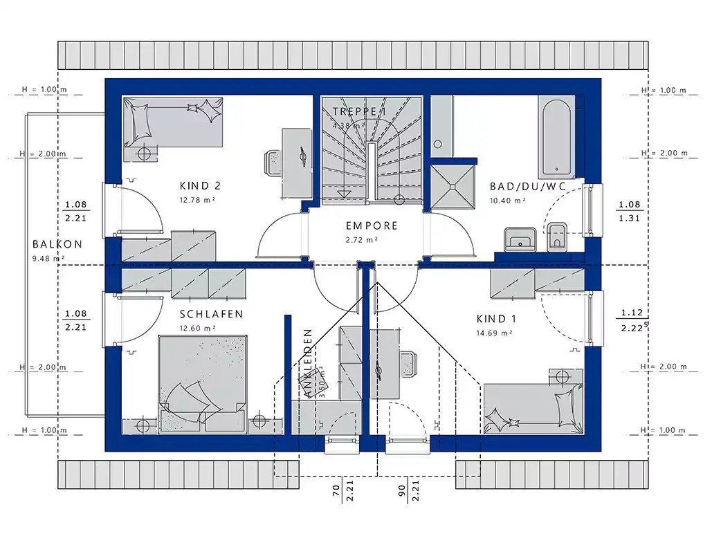
160 m²
Grundstück ca.:
309 m²
Zimmeranzahl:
5
Objektbeschreibung
Dieser Hausentwurf bietet von allem noch ein bisschen mehr. Der repräsentative Eingangsbereich führt direkt in das Wohn- und Esszimmer, das sich über die gesamte Hauslänge erstreckt.
Das könnte Ihnen auch gefallen
Ihre Ansprechpartnerin

Daniela König - Freie Handelsvertretung der Bien-Zenker GmbH
Frau Daniela König
Am Flürchen 3a
55624 Oberkirn
Telefon: +49 1520 6535507
Objekt-Adresse
55566 Bad Sobernheim
Optionen













































