Guntersblum:
Kleiner wohnen, größer leben- moderner Neubau,Grundstück inkl.von Bien Zenker
Objekt-Nr.: 12023-9980

BALANCE 145 V3 10062 web


3441 BienZenker Insta II Balance 145 V3 Osterbonus 13756 web

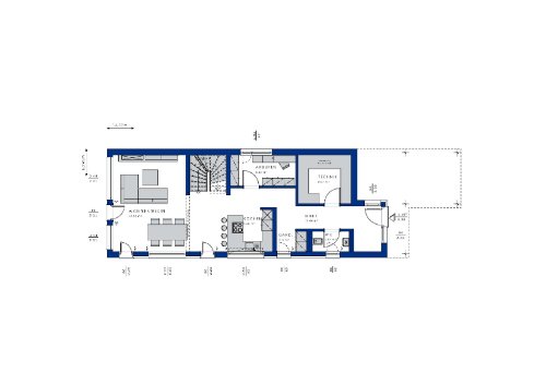
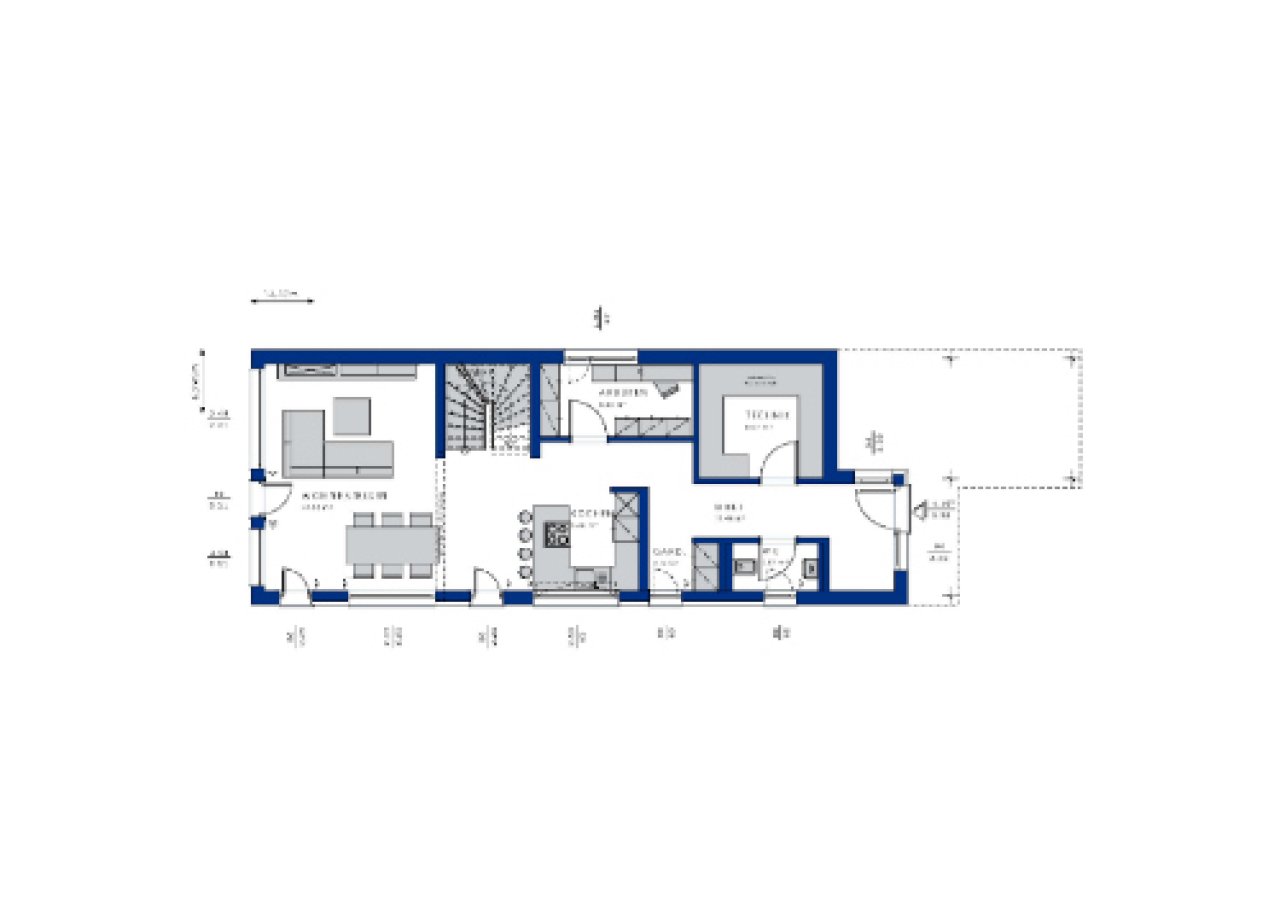
BAL 145 V3 KAT EG M1-75 14496 web

BAL 145 V3 KAT OG M1-75 14498 web

BALANCE 145 V3 Innen 10057 web

3441 BienZenker Insta II Balance 145 V3 Cam4 Abend 13755 web

BALANCE 145 V3 Innen 10061 web






















Preis:
534.828 €
Wohnfläche ca.:
145 m²
Grundstück ca.:
187 m²
Zimmeranzahl:
5
Schon beim Betreten der Diele wird man sich der Großzügigkeit und Offenheit des Grundrisses bewusst.
„Form follows function“ lautet das Motto der Bauhaus-Architektur.
In dieser Tradition präsentiert sich auch der Entwurf BALANCE 145 mit Flachdach.
Der schlichte, quaderförmige Baukörper mit Flachdach wird erweitert durch einen Eingangs-Erker mit praktischer Eingangsüberdachung, die sich in ein Carport verlängert.
Die von uns gemachten Informationen beruhen auf Angaben des Verkäufers bzw. der Verkäuferin. Für die Richtigkeit und Vollständigkeit der Angaben kann keine Gewähr bzw. Haftung übernommen werden. Ein Zwischenverkauf und Irrtümer sind vorbehalten.
Wir weisen auf unsere Allgemeinen Geschäftsbedingungen hin. Durch weitere Inanspruchnahme unserer Leistungen erklären Sie die Kenntnis und Ihr Einverständnis.
Das könnte Ihnen auch gefallen

Daniela König - Freie Handelsvertretung der Bien-Zenker GmbH
Frau Daniela König
Am Flürchen 3a
55624 Oberkirn
Telefon: +49 1520 6535507
67583 Guntersblum




















































