Sörgenloch:
Schickes EFH mit viel Platz von deutschlands beliebtesten Fertighausanbieter BIEN ZENKER inkl. Baugrundstück
Objekt-Nr.: 12023-9864






































Preis:
632.764 €
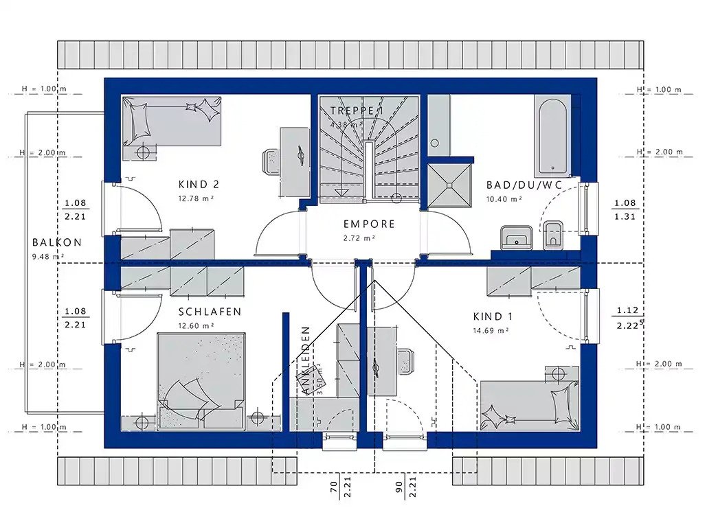
Wohnfläche ca.:
140 m²
Grundstück ca.:
254 m²
Zimmeranzahl:
5
Objektbeschreibung
Bei Bien-Zenker passt einfach alles. Wir bieten Ihnen eine große Auswahl an Ausstattung von Bädern, Küchen, Innentüren, Außentüren, Bodenbelägen und Fenstern und diversen anderen interessanten Ausstattungsdetails. Von klassisch bis modern, von reduziert bis extravagant, hier finden Sie garantiert etwas passendes.
Das könnte Ihnen auch gefallen
Ihre Ansprechpartnerin

Daniela König - Freie Handelsvertretung der Bien-Zenker GmbH
Frau Daniela König
Am Flürchen 3a
55624 Oberkirn
Telefon: +49 1520 6535507
Objekt-Adresse
55270 Sörgenloch
Optionen


















































