Undenheim:
Nie wieder Miete zahlen! Planen Sie mit Bien Zenker Ihr Eigenheim inkl.Baugrundstück & Bestpreisgarantie
Objekt-Nr.: 12023-9861






























Preis:
634.544 €
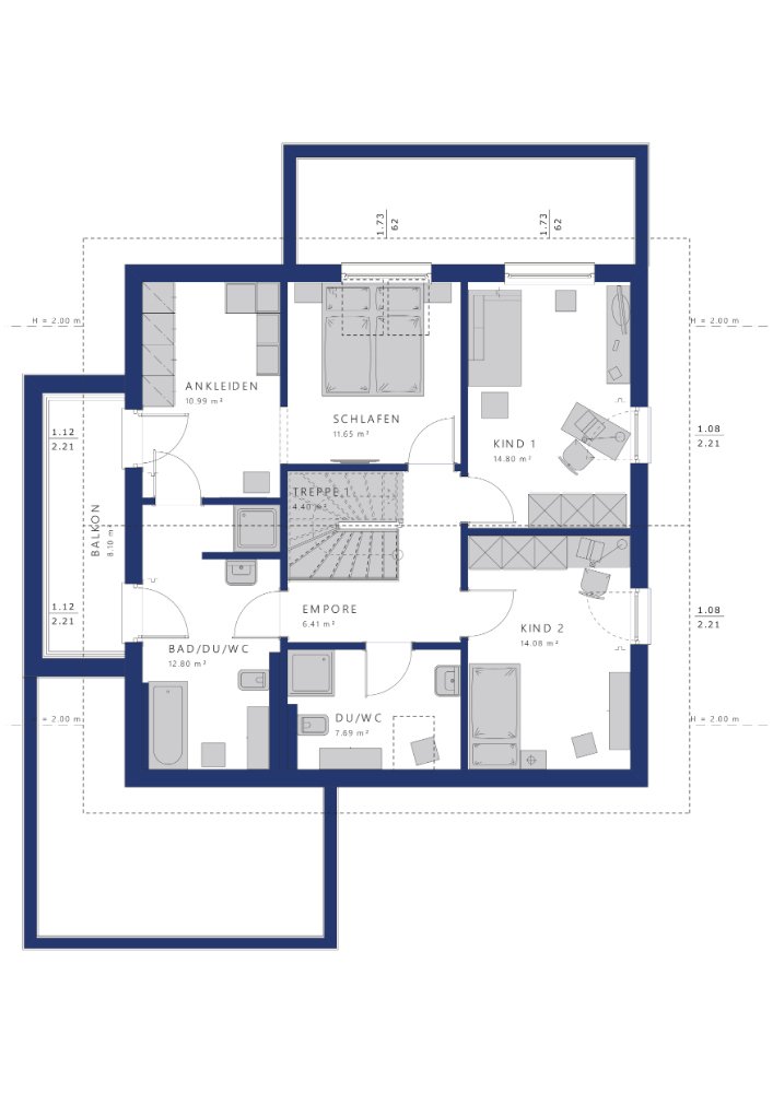
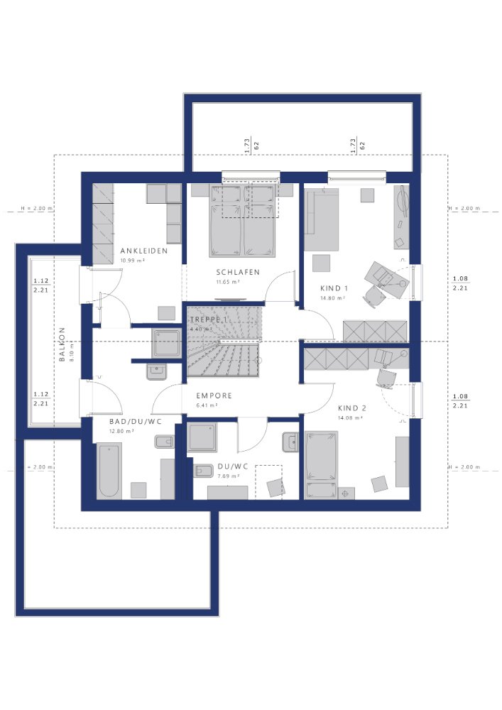
Wohnfläche ca.:
165 m²
Grundstück ca.:
305 m²
Zimmeranzahl:
5
Objektbeschreibung
In den Bien-Zenker Häusern spiegelt sich unsere ganze Erfahrung und Kompetenz im Bau moderner und zukunftsorientierter Wohlfühl-Häuser wider. Wir vereinen den „perfekten“ Grundriss mit absoluter Spitzen-Architektur und hochinnovativer Technik zu einem fantastischen Gesamtkonzept.
Das könnte Ihnen auch gefallen
Ihre Ansprechpartnerin

Daniela König - Freie Handelsvertretung der Bien-Zenker GmbH
Frau Daniela König
Am Flürchen 3a
55624 Oberkirn
Telefon: +49 1520 6535507
Objekt-Adresse
55278 Undenheim
Optionen


















































