Meisenheim , Glan:
Kleiner wohnen, größer leben- moderner Neubau,Grundstück inkl.von Bien Zenker
Objekt-Nr.: 12023-9829


































Preis:
478.533 €
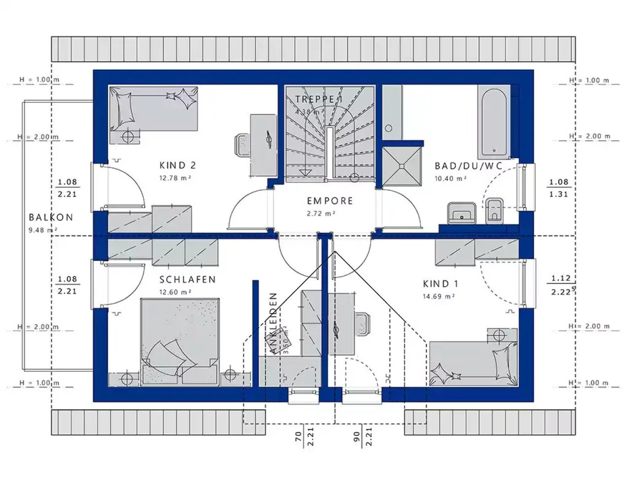
Wohnfläche ca.:
128,58 m²
Grundstück ca.:
503 m²
Zimmeranzahl:
4
Das Raumkonzept des Fertighauses orientiert sich an den Bedürfnissen und Gewohnheiten einer vierköpfigen Familie. Lebensmittelpunkt ist das Erdgeschoss, wo sich der großzügige Wohn-, Ess- und Kochbereich befindet, der sich bis in den luftigen Erker hinein erstreckt
Haustyp: Einfamilienhaus
Etagenanzahl: 2
Die von uns gemachten Informationen beruhen auf Angaben des Verkäufers bzw. der Verkäuferin. Für die Richtigkeit und Vollständigkeit der Angaben kann keine Gewähr bzw. Haftung übernommen werden. Ein Zwischenverkauf und Irrtümer sind vorbehalten.
Wir weisen auf unsere Allgemeinen Geschäftsbedingungen hin. Durch weitere Inanspruchnahme unserer Leistungen erklären Sie die Kenntnis und Ihr Einverständnis.
Das könnte Ihnen auch gefallen

Daniela König - Freie Handelsvertretung der Bien-Zenker GmbH
Frau Daniela König
Am Flürchen 3a
55624 Oberkirn
Telefon: +49 1520 6535507
55590 Meisenheim , Glan



























































