Selzen:
Den HERBST im eigenen Garten erleben- bauen Sie mit BIEN ZENKER Ihr TRAUMHAUS inkl. Baugrundstück-IHR NEUBAU 2026 !
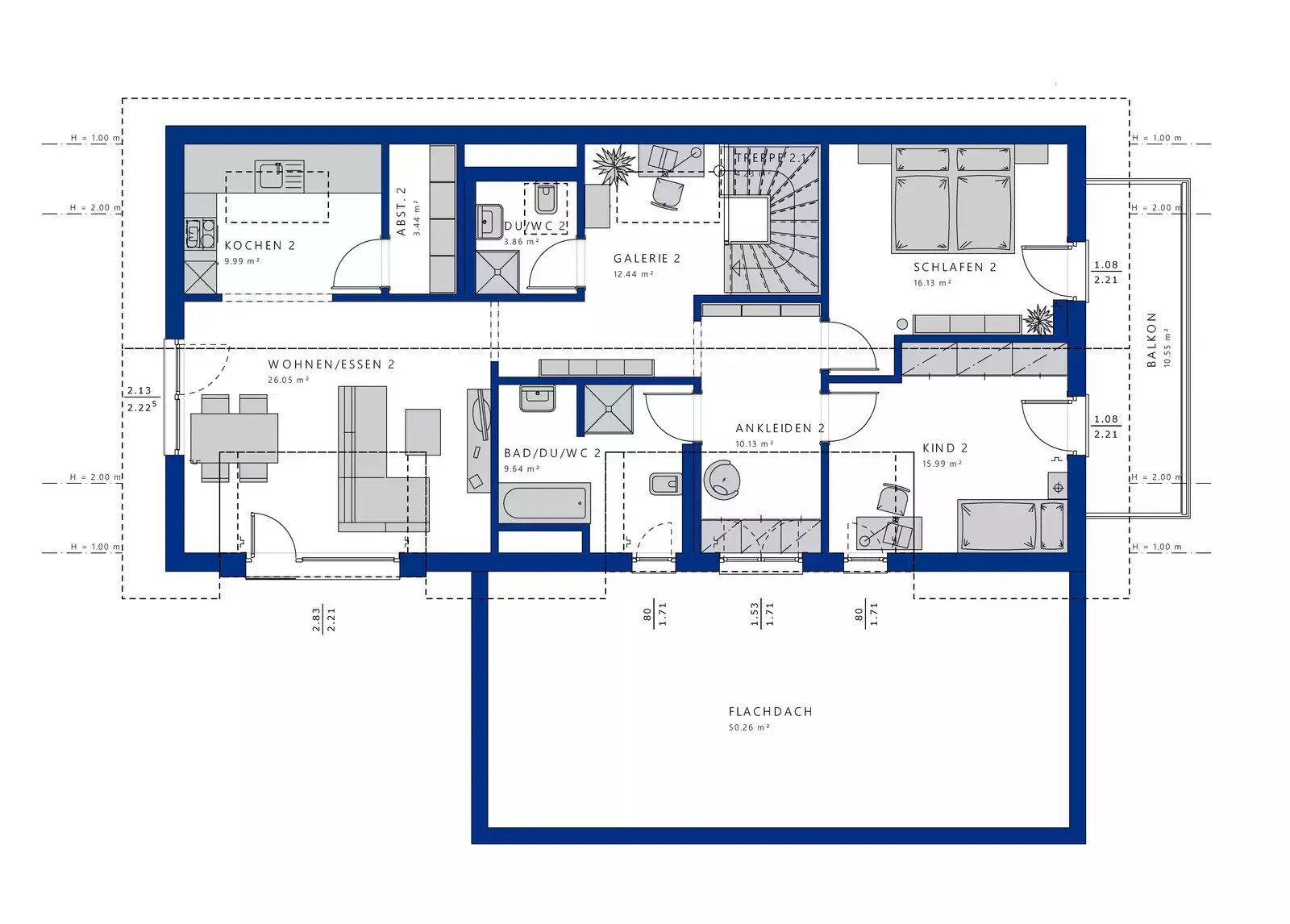
Objekt-Nr.: 12023-9775


































Preis:
583.854 €
Wohnfläche ca.:
145 m²
Grundstück ca.:
406 m²
Zimmeranzahl:
5
Wer sich ein zeitlos schönes Eigenheim mit einem großzügigen Platzangebot wünscht, der sollte bei diesem Entwurf etwas genauer hinschauen. Von außen überzeugt das Fertighaus mit seiner klaren Geometrie: An den quaderförmigen Baukörper schließt sich ein Übereck-Erker im XXL-Format an, der in eine schlichte Terrassenüberdachung übergeht.
Die von uns gemachten Informationen beruhen auf Angaben des Verkäufers bzw. der Verkäuferin. Für die Richtigkeit und Vollständigkeit der Angaben kann keine Gewähr bzw. Haftung übernommen werden. Ein Zwischenverkauf und Irrtümer sind vorbehalten.
Wir weisen auf unsere Allgemeinen Geschäftsbedingungen hin. Durch weitere Inanspruchnahme unserer Leistungen erklären Sie die Kenntnis und Ihr Einverständnis.
Das könnte Ihnen auch gefallen

Daniela König - Freie Handelsvertretung der Bien-Zenker GmbH
Frau Daniela König
Am Flürchen 3a
55624 Oberkirn
Telefon: +49 1520 6535507
55278 Selzen










































