Rehborn:
Suchen Sie noch den perfekten Bauplatz + Traumhaus? Wir von Bien Zenker haben alles in einem Paket Traumhaus inkl. Grundstück!
Objekt-Nr.: 12023-9525


























Preis:
486.744 €
Wohnfläche ca.:
145 m²
Grundstück ca.:
450 m²
Zimmeranzahl:
5
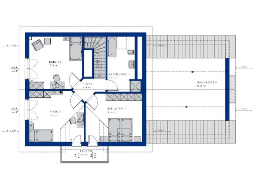
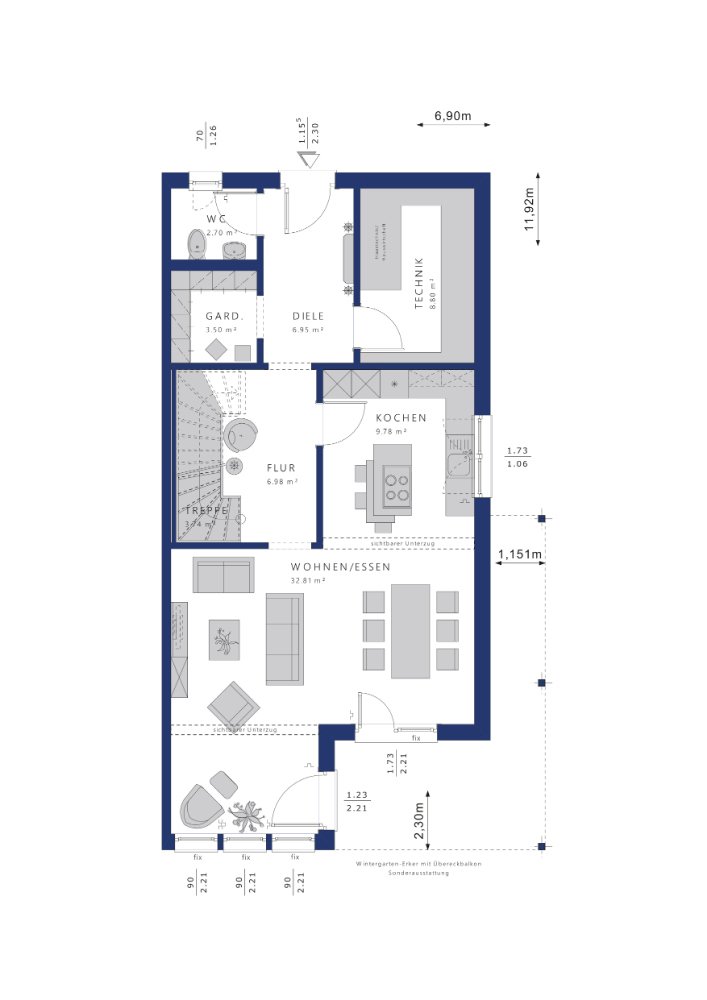
Objektbeschreibung
Wer sich ein zeitlos schönes Eigenheim mit einem großzügigen Platzangebot wünscht, der sollte bei diesem Entwurf etwas genauer hinschauen. Von außen überzeugt das Fertighaus mit seiner klaren Geometrie: An den quaderförmigen Baukörper schließt sich ein Übereck-Erker im XXL-Format an, der in eine schlichte Terrassenüberdachung übergeht.
Das könnte Ihnen auch gefallen
Ihre Ansprechpartnerin

Daniela König - Freie Handelsvertretung der Bien-Zenker GmbH
Frau Daniela König
Am Flürchen 3a
55624 Oberkirn
Telefon: +49 1520 6535507
Objekt-Adresse
55592 Rehborn
Optionen

















































