Volxheim:
Moderner Neubau mit Ecken und Kanten aus dem Haus Bien Zenker inkl. Baugrundstück in TOP LAGE
Objekt-Nr.: 12023-9417


























Preis:
478.900 €
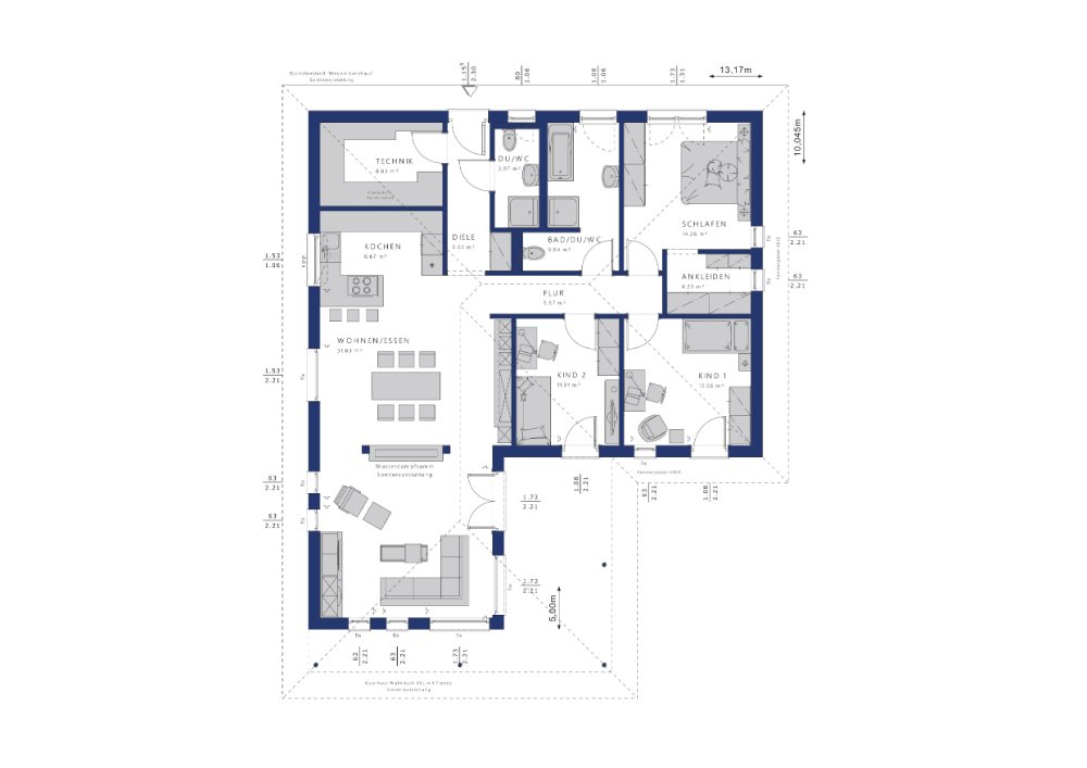
Wohnfläche ca.:
110 m²
Grundstück ca.:
400 m²
Zimmeranzahl:
5
Objektbeschreibung
Der Winkelbungalow ist nach wie vor ein gefragter Haustyp. Kein Wunder, schließlich bietet er zahlreiche Vorteile. Zum einen ist der geschützte Winkel der perfekte Ort für eine gemütliche, überdachte Terrasse. Zum anderen lassen sich durch die besondere Form die Wohnbereiche im Innern einfacher trennen.
AGB
Wir weisen auf unsere Allgemeinen Geschäftsbedingungen hin. Durch weitere Inanspruchnahme unserer Leistungen erklären Sie die Kenntnis und Ihr Einverständnis.
Das könnte Ihnen auch gefallen
Ihre Ansprechpartnerin

Daniela König - Freie Handelsvertretung der Bien-Zenker GmbH
Frau Daniela König
Am Flürchen 3a
55624 Oberkirn
Telefon: +49 1520 6535507
Objekt-Adresse
55546 Volxheim
Optionen