Siefersheim:
Suchen Sie noch den perfekten Bauplatz + Traumhaus? Wir von Bien Zenker haben alles in einem Paket Traumhaus inkl. Grundstück!
Objekt-Nr.: 12023-9411

3729 BienZenker Celebration200 SD SD 03 13972 web



CEL 200 V3 KAT SD-SD EG 14794 web

CEL 200 V3 KAT SD-SD DG 14792 web

3729 BienZenker Celebration200 SD FD WEK 02 13976 web

3729 BienZenker Celebration200 SD SD Kizi 02 13968 web























Preis:
739.633 €
Wohnfläche ca.:
200 m²
Grundstück ca.:
293 m²
Zimmeranzahl:
8
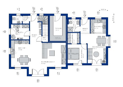
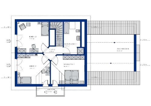
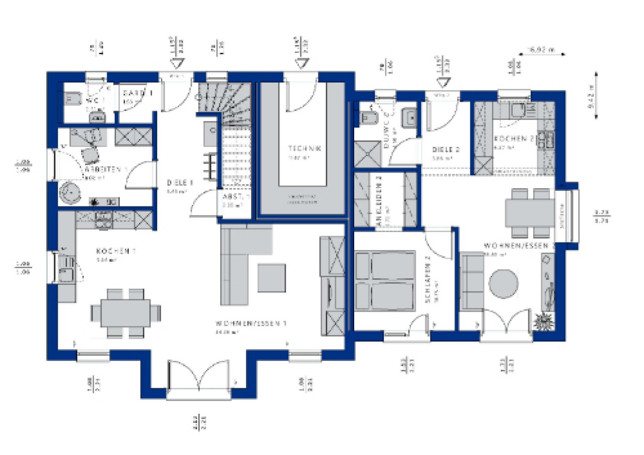
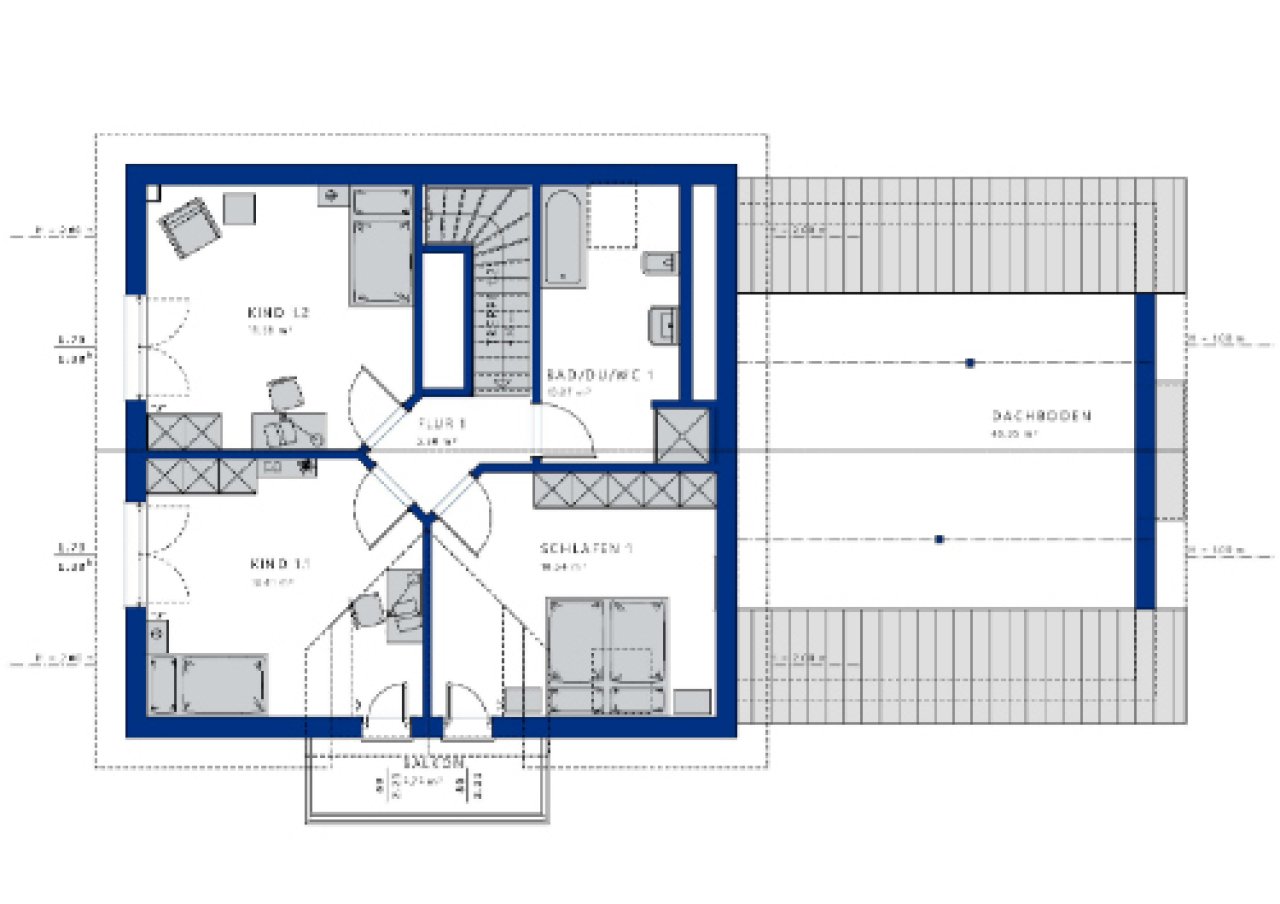
Grundrisse sagen mehr als viele Textbausteine !!
Werfen Sie einen Blick darauf und Sie werden sehen, was dieses Haus so exklusiv macht!
Die von uns gemachten Informationen beruhen auf Angaben des Verkäufers bzw. der Verkäuferin. Für die Richtigkeit und Vollständigkeit der Angaben kann keine Gewähr bzw. Haftung übernommen werden. Ein Zwischenverkauf und Irrtümer sind vorbehalten.
Wir weisen auf unsere Allgemeinen Geschäftsbedingungen hin. Durch weitere Inanspruchnahme unserer Leistungen erklären Sie die Kenntnis und Ihr Einverständnis.
Das könnte Ihnen auch gefallen

Daniela König - Freie Handelsvertretung der Bien-Zenker GmbH
Frau Daniela König
Am Flürchen 3a
55624 Oberkirn
Telefon: +49 1520 6535507
55599 Siefersheim