Mainz Weisenau:
Baupartner gesucht -DHH- Nachhaltig, innovativ und wertbeständig... moderne DHH inkl. Baugrundstück
Objekt-Nr.: 12023-9386








































Preis:
664.500 €
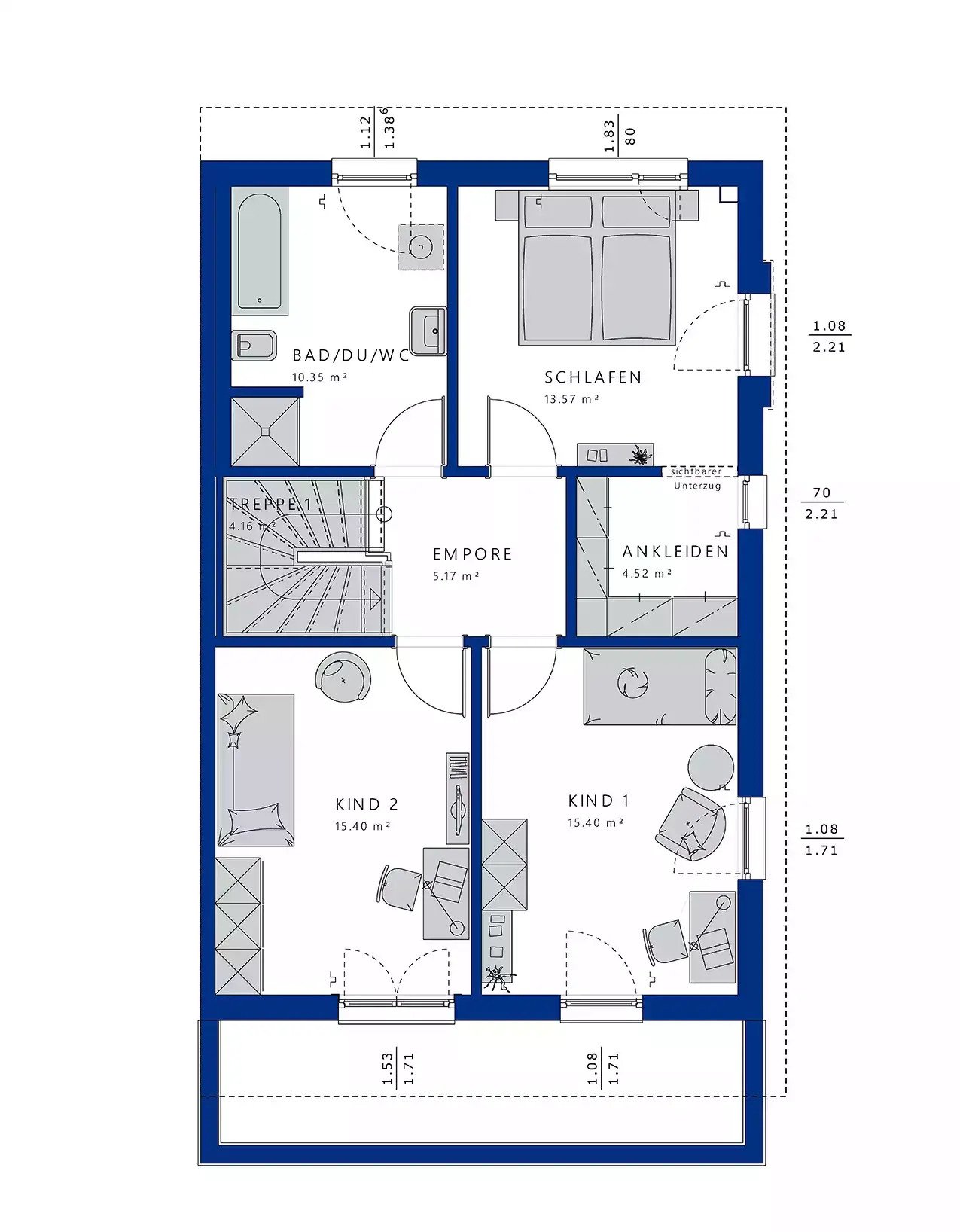
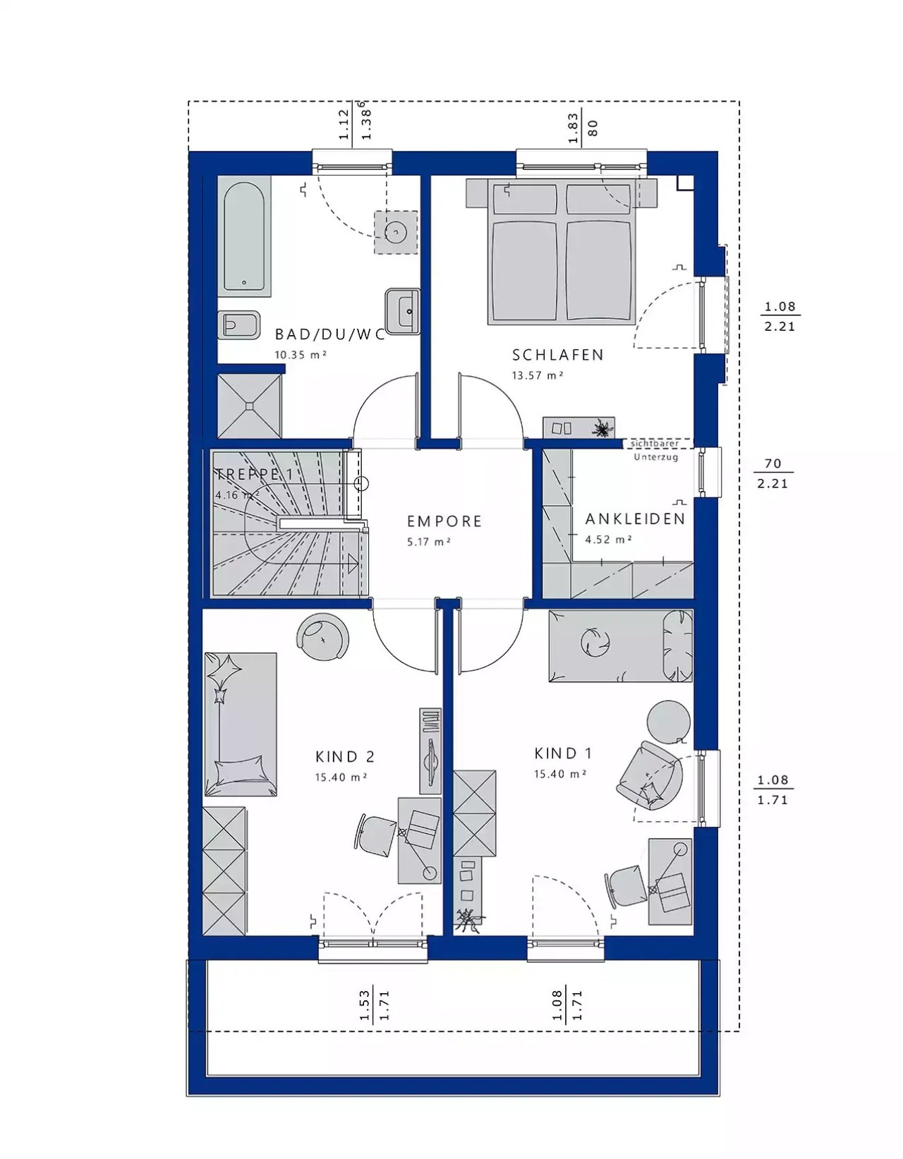
Wohnfläche ca.:
148 m²
Grundstück ca.:
220 m²
Zimmeranzahl:
4,5
Auch mit einem Doppelhaus lassen sich individuelle Wohnwünsche realisieren. Ein Beispiel dafür ist dieses moderne Gebäude, das mit vielen attraktiven Details aufwartet.
Der Baukörper wird erweitert von einem Wintergarten-Erker mit Flachdach, der sich über die gesamte Gartenseite erstreckt.
Haustyp: Doppelhaushälfte
Die von uns gemachten Informationen beruhen auf Angaben des Verkäufers bzw. der Verkäuferin. Für die Richtigkeit und Vollständigkeit der Angaben kann keine Gewähr bzw. Haftung übernommen werden. Ein Zwischenverkauf und Irrtümer sind vorbehalten.
Wir weisen auf unsere Allgemeinen Geschäftsbedingungen hin. Durch weitere Inanspruchnahme unserer Leistungen erklären Sie die Kenntnis und Ihr Einverständnis.
Das könnte Ihnen auch gefallen

Daniela König - Freie Handelsvertretung der Bien-Zenker GmbH
Frau Daniela König
Am Flürchen 3a
55624 Oberkirn
Telefon: +49 1520 6535507
55130 Mainz Weisenau