Bad Sobernheim:
Schickes EFH mit viel Platz von deutschlands beliebtesten Fertighausanbieter BIEN ZENKER inkl. Baugrundstück
Objekt-Nr.: 12023-10082





AUSZEICHNUNG BZ





























Preis:
497.859 €
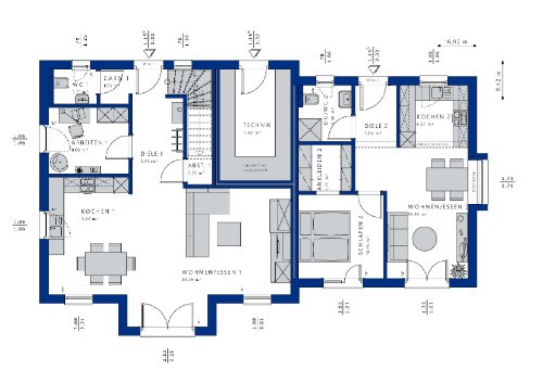
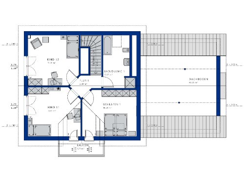
Wohnfläche ca.:
160 m²
Grundstück ca.:
386 m²
Zimmeranzahl:
5
Objektbeschreibung
Dieses Haus überzeugt wie alle Evolution Häuser mit Vielfalt und Individualität bei Architektur und Design. Die großen Fenster und die klare Liniensprache verleihen diesem Haus sein elegant-modernes Gesicht. Unabhängig von Dachform, Designpaket und Fassadengestaltung als Putz- oder Klinkerfassade zeigt sich das EFH immer äußerst repräsentativ.
Das könnte Ihnen auch gefallen
Ihre Ansprechpartnerin

Daniela König - Freie Handelsvertretung der Bien-Zenker GmbH
Frau Daniela König
Am Flürchen 3a
55624 Oberkirn
Telefon: +49 1520 6535507
Objekt-Adresse
55566 Bad Sobernheim
Optionen

















































